Công trình nhà cấp 4 hiện đại tại Đắk Lắk là một trong những dự án nổi bật mà Công Ty TNHH Tư vấn Thiết kế Kiến trúc XD HT Decor vừa khởi công và hoàn thiện. Với mong muốn mang đến cho khách hàng không gian sống tiện nghi, tối giản nhưng vẫn sang trọng, đội ngũ kỹ sư và kiến trúc sư của chúng tôi đã kết hợp hài hòa giữa thiết kế hiện đại và công năng sử dụng thực tế.Ngôi nhà được thiết kế theo phong cách hiện đại, sử dụng gam màu sáng chủ đạo, cùng với hệ cửa kính lớn giúp tận dụng ánh sáng tự nhiên và tạo cảm giác thông thoáng.

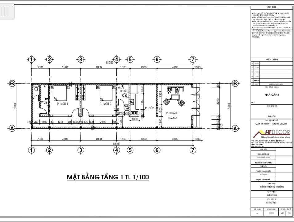
Tổng thể bố trí hài hòa, đảm bảo công năng sử dụng hợp lý cho gia đình 4 người, đồng thời giữ được vẻ hiện đại, tiện nghi.


Công trình nhà cấp 4 hiện đại tại Đắk Lắk là minh chứng rõ nét cho phong cách thi công chuyên nghiệp – uy tín – đúng tiến độ của Công ty TNHH Tư vấn Thiết kế Kiến trúc XD HT Decor
Chúng tôi luôn mong muốn mang đến cho khách hàng một không gian sống hoàn hảo, nơi từng chi tiết nhỏ đều được chăm chút tỉ mỉ.
- Nếu bạn đang có nhu cầu:
- Thiết kế, thi công nhà cấp 4 hiện đại
- Xây dựng trọn gói tại Đắk Lắk hoặc khu vực Tây Nguyên
- Tư vấn báo giá chi tiết theo nhu cầu thực tế
👉 Liên hệ ngay với công ty chúng tôi để được tư vấn miễn phí và nhận báo giá tốt nhất!

